4628 62 Street, Red Deer
- $8.00/Per SF
4628 62 Street, Red Deer
- $8.00/Per SF
Description
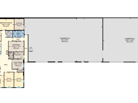
FOR LEASE – Located in Riverside Light Industrial Park, this space offers 11,206 SF with a reception area/lobby, six offices (some with windows), two meeting rooms/boardrooms, a file room, multiple storage rooms, and two washrooms. The large shop has 20′ ceilings and is separated into two areas with (5) 14′ overhead doors. The yard is fenced and graveled with paved parking available directly in front. Additional Rent is $4.06 for the 2025 budget year.
Property Documents
4628 62 Street - Cooper Warehouse
Details
- Price $8.00/Per SF
- Property Size 11206 Sq Ft
- Year Built 1992
- Property Type Industrial
- Property Status For Lease
- Neighborhood/Region Riverside Light Industrial
- Zoning I1
- Drive-In Door Count 5
- MLS ID A2216425
Address
Open on Google Maps- Address: 4628 62 Street
- City: Red Deer
- State/county: Alberta
- Zip/Postal Code: T4N 6T3
- Area: Riverside Light Industrial
- Country: Canada
Features
360° Virtual Tour
Overview
- Industrial
- 2
- 11206 Sq Ft
- 1992
